ПСЛ 20
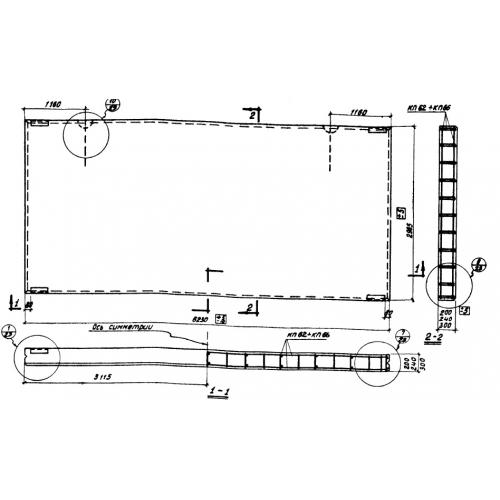
Характеристики изделия:
| Параметр | Значение |
|---|---|
| длина | 6230 мм |
| ширина | 200 мм |
| высота | 2985 мм |
| масса | 5300 кг |
| нормативный документ | Серия СТ 02-33 |
Цена:
Рассчитать стоимостьПСЛ 20 Панели стеновые из легкого бетона по Серии СТ 02-33.
| Параметр | Значение |
|---|---|
| длина | 6230 мм |
| ширина | 200 мм |
| высота | 2985 мм |
| масса | 5300 кг |
| нормативный документ | Серия СТ 02-33 |
ПСЛ 20 Панели стеновые из легкого бетона по Серии СТ 02-33.
