ПОА 31

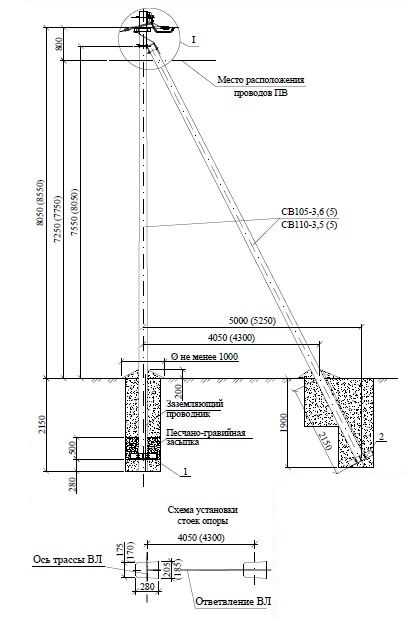
Чертеж изделия:
Характеристики изделия:
ПараметрЗначение
длина10200 мм
ширина205 мм
высота280 мм
масса1175 кг
нормативный документШифр 26.0085

ПОА 31  Переходные ответвительные анкерные одноцепные опоры  Шифр 26.0085.