ПСТ 29.18.3.5

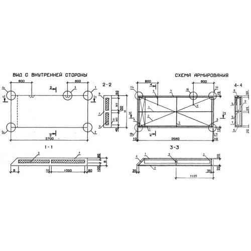
Чертеж изделия:
Характеристики изделия:
ПараметрЗначение
длина2890 мм
ширина350 мм
высота1785 мм
масса1960 кг
нормативный документШифр М25.13/98

ПСТ 29.18.3.5 Панели стеновые трёхслойные по Шифру М25.13/98.